荷蘭,阿姆斯特丹,海邊的斜面大廈 / BIG + Barcode
世界建筑
04-19
2023
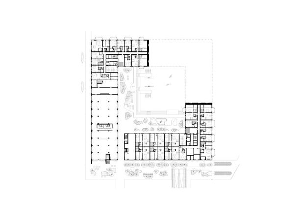
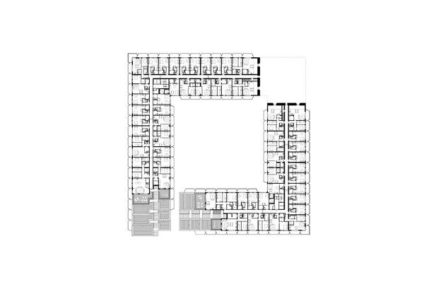
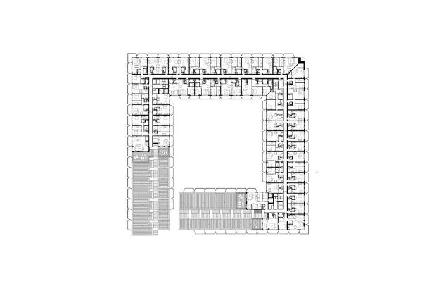
Bjarke Ingels Group (BIG)和Barcode Architects通過Sluishuis住房項目為阿姆斯特丹完成了一個新地標。該項目矗立在水邊、農村景觀和城市的交匯處,矗立在不斷發展的IJburg住宅區內。Sluishuis由VORM、BESIX房地產開發公司和BESIX荷蘭公司共同開發和建造,是對阿姆斯特丹典型建筑群的現代翻版,吸取其中的海邊元素。
該建筑采用了獨特的幾何形狀,從一角升起,邀請水進入其階梯式庭院。該建筑似乎漂浮在水面之上,同時用一組友好的綠色梯田沿海岸歡迎海上游客來到IJburg。
項目信息:
項目名稱:斯盧斯胡斯
建筑:Bjarke Ingels Group (BIG), Barcode Architects | @barcode_architects
地點:荷蘭,阿姆斯特丹
攝影:? Ossip van Duivenbode | @ossipvanduivenbode
附件:


















